太原大众棚改地块项目设计调整方案曝光,附对比图 ↓

3月9日,规自局公示了大众棚户区改造B地块项目建设工程规划设计调整方案。
一、建设单位名称:太原华瑞置业有限公司
二、工程名称:大众棚户区改造B地块项目
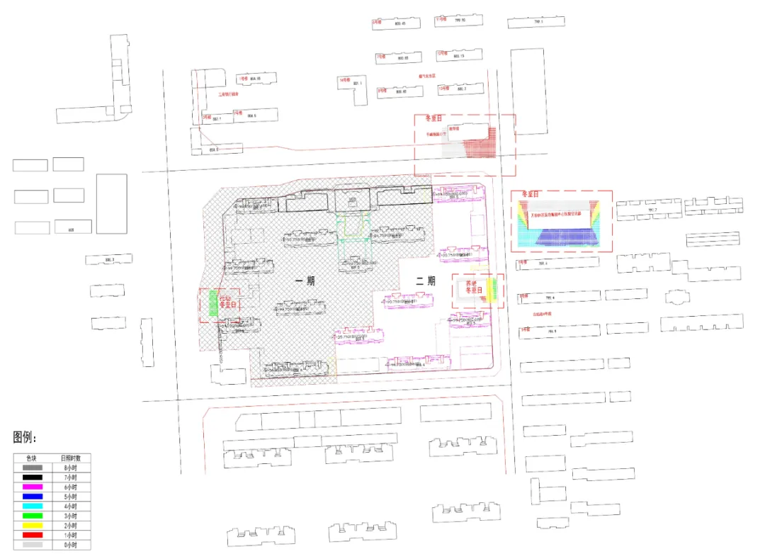
三、工程位置:万柏林区大众街以北,后王街以南,和平南路以东,众纺路以西
四、建筑功能:住宅、商业、配套
五、结构形式:钢筋、混凝土结构
六、设计单位:河北拓朴建筑设计有限公司
公示时间:2026年3月9日至2026年3月17日
提示:公众号平台更改了推送规则,如果不想错过精彩文章,记得读完点个“赞”、点个“在看”,这样每次新文章推送才会第一时间出现在你的订阅列表里!