上一期聊了综改区的金碧未来引发不少读者的关注,详情见“继锦绣长风、汾东之后,太原保障房第三棒交给谁?答案指向金碧未来!”,今天,咱们把目光转向太原另一个重磅保障房项目——丽华·龙城天瑞。这个被市场称为太原目前“最好”的保障房项目,不仅区位稀缺,近期更是接连拿到多个官方“准生证”,推进速度也挺快!

丽华龙城天瑞有哪些核心竞争力呢?
01 核心区位:豪宅区里的“稀缺品”
丽华·龙城天瑞项目选址于太原高端住宅云集的龙城大街核心区域,具体位于小店区龙城大街以南、龙城南街以北、坞城中路以西。
周边保利龙城天珺、龙城金茂府等豪宅林立,这个位置说是太原的“黄金地段”一点也不为过。作为太原市第三个配售型保障性住房项目,丽华·龙城天瑞的落地,标志着太原市保障性住房建设首次进入城市核心高端板块,稀缺价值不言而喻。

02 投资规模:近9亿大手笔
根据山西省公共资源交易平台发布的信息,项目总投资额高达8.99亿元。项目建设单位为山西晋勤保障性住房开发建设有限公司。
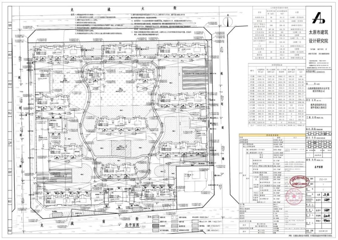
03 硬核数据:15.4万方大盘
从官方公布的数据来看,项目规模相当可观:
1、总用地面积:47584.01㎡(约5.04公顷)
2、总建筑面积:154127.32㎡
3、地上总建筑面积:115026.78㎡(计容面积111472.98㎡)
4、地下建筑面积:39100.54㎡
5、总户数:961户
6、预计居住人口:3076人

值得一提的是,今年1月底,项目剩余部分(0.104495公顷)也已完成土地划拨公示,2月初剩余用地(844.69㎡)顺利拿到《建设用地规划许可证》,项目推进速度相当快。

项目共规划17个建筑单元,包括13栋住宅楼、3栋配套服务楼及地下车库:
住宅楼分布均为清一色的小高层
· 1号楼:17层 · 2号楼:17层
· 3号楼:16层 · 4号楼:17层
· 5号楼:17层 · 6号楼:17层
· 7号楼:16层 · 8号楼:16层
· 9号楼:17层 · 10号楼:16层
· 11号楼:16层 · 12号楼:16层
· 13号楼:16层

05 配套齐全:2.6万㎡服务设施
从经济技术指标来看,项目配套服务设施2594.86㎡,涵盖居民生活方方面面:
商业配套(3110.72㎡):
· 菜市场:191.73㎡
· 便利店:61.54㎡
· 快递收发站:53.17㎡
文化体育(710.39㎡):
· 文化活动站:201.00㎡
· 居民运动馆:509.39㎡
社区服务:
· 物业管理用房:310.11㎡
· 老年日间照料中心:324.64㎡
· 社区警务室:46.18㎡
· 门卫:14.40㎡
市政公用:
· 生活水泵房:148.42㎡
· 公厕:145.10㎡
· 换电站:39.39㎡
06 品质指标:低密舒适,绿地率35%
项目在规划上注重居住品质,各项指标相当亮眼:
· 容积率:2.34——舒适度较高
· 建筑密度:23.05%——空间开阔
· 绿地率:35.00%——环境优美
· 兼容比:2.79%——功能合理
07 停车配套:1014个车位充足保障
机动车停车位:1014辆(地下950辆,地上64辆)
非机动车停车位:1233辆(全部地上设置)
08 最新动态:今年集中拿证
项目近期动作频频:
2026年1月20日:取得建设工程规划许可证
2026年1月29日:剩余用地土地划拨公示
2026年1月29日:剩余用地取得建设用地规划许可证
关注三晋公众号,后期会持续追踪此项目的进程

随着项目进入实质性建设阶段,太原的保障房版图正在悄然生变。从“锦绣长风”到“锦绣汾东”“金碧未来”,再到“丽华·龙城天瑞”,太原正以更高标准、更优品质为居民打造安心家园。丽华龙城天瑞这个位于城市核心高端板块的保障房项目,将为符合条件的家庭提供高品质的居住环境,真正实现“居者有其屋”的美好愿景。
让我们一起期待这个项目的建成,见证太原保障性住房建设的新篇章!
注:本文数据来源于官方公开规划资料,最终以实际建设为准!