


泰康之家晋园、泰康之家晋园康复医院由泰康之家(太原)置业有限公司开发建设,由上海天华建筑设计有限公司设计。

项目位于规划路以东、山西焦煤集团有限责任公司以北、九院沙河以南、焦煤双创基地以西;建筑功能包含养老机构、康复医疗机构;结构形式为框架、剪力墙结构。


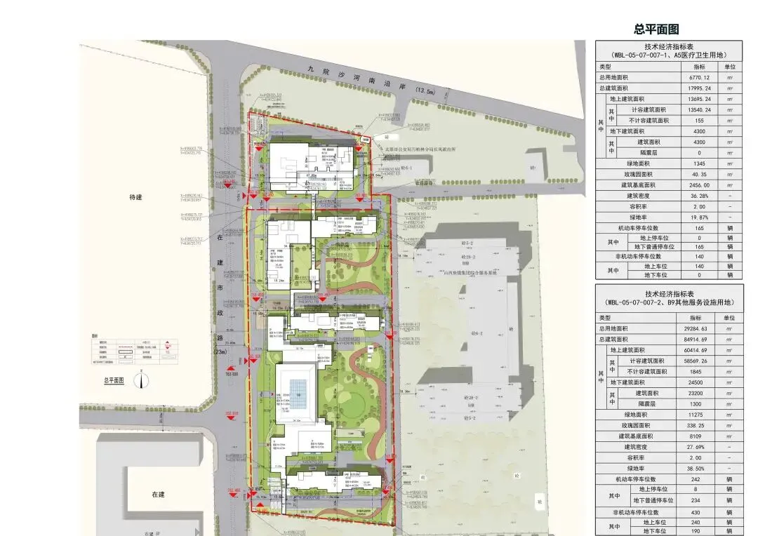
其中康复医院总用地面积6770.12㎡,总建筑面积17995.24㎡;养老设施总用地面积29284.63㎡,总建筑面积84914.69㎡。其余详细经济技术指标见下图。



作为一家大规模、全功能、国际标准的高品质养老社区,泰康之家·晋园地上建筑面积约7.2万平方米,可提供约880个养老单元和200余张医疗床位,项目一期预计于2028年投入运营,开业后将为山西长者带来享老生活的新选择。
泰康之家·晋园选址万柏林区核心区——长风西片区丽华板块,紧邻长风商务区、太原万象城,距离迎泽大街、晋阳湖公园等城市地标区域车程约15分钟。晋园周边生态资源丰富,北侧紧邻九院沙河,向东步行至汾河景区仅需约5分钟路程,是理想的休闲颐养之地。此外,晋园周边的优质医疗配套也十分完善,7分钟内可达三甲医院山西中医药大学附属医院、15分钟内可达6家三甲医院。

根据《山西省2024年国民经济和社会发展统计公报》显示:在全省的常住人口中,60岁及以上人口为778.99万人,占22.61%,其中65岁及以上人口为541.84万人,占常住人口的15.72%,由此可见,当地应对人口老龄化的任务艰巨繁重。泰康之家·晋园开业运营后,将成为整个山西地区养老供给侧结构性改革的新样板。

近年来,山西省大力发展康养产业,持续打造“康养山西、夏养山西”品牌,将文旅康养产业打造成为全省转型发展的战略性支柱产业和民生幸福产业。太原市也在抢抓机遇,全力推动全市文旅康养产业高质量发展。未来,泰康之家·晋园将发挥泰康之家的连锁优势,打造太原省级康养示范区,为三晋大地乃至全国的长辈们打造一座舒心又安心的“幸福享老桃花源”。
敬请关注住在太原后续有关该项目的跟踪报道!
商务广告合作:点击查看联系微信

