
01
配套道路

太原市配售型保障性住房锦绣汾东项目配套道路-二号线南街项目总投资6487.14万元,招标内容为施工,建设地点位于太原市小店区。

本项目分两段建设,东西段长646.069米,规划红线宽度20m,道路等级为城市支路;南北段长262.387米,规划红线宽度30m,道路等级为城市次干路。建设内容主要包括道路工程、桥涵工程、排水工程、照明工程、电力土建工程、交通安全与管理设施、公安天网系统工程、绿化工程等。


02
配套幼儿园

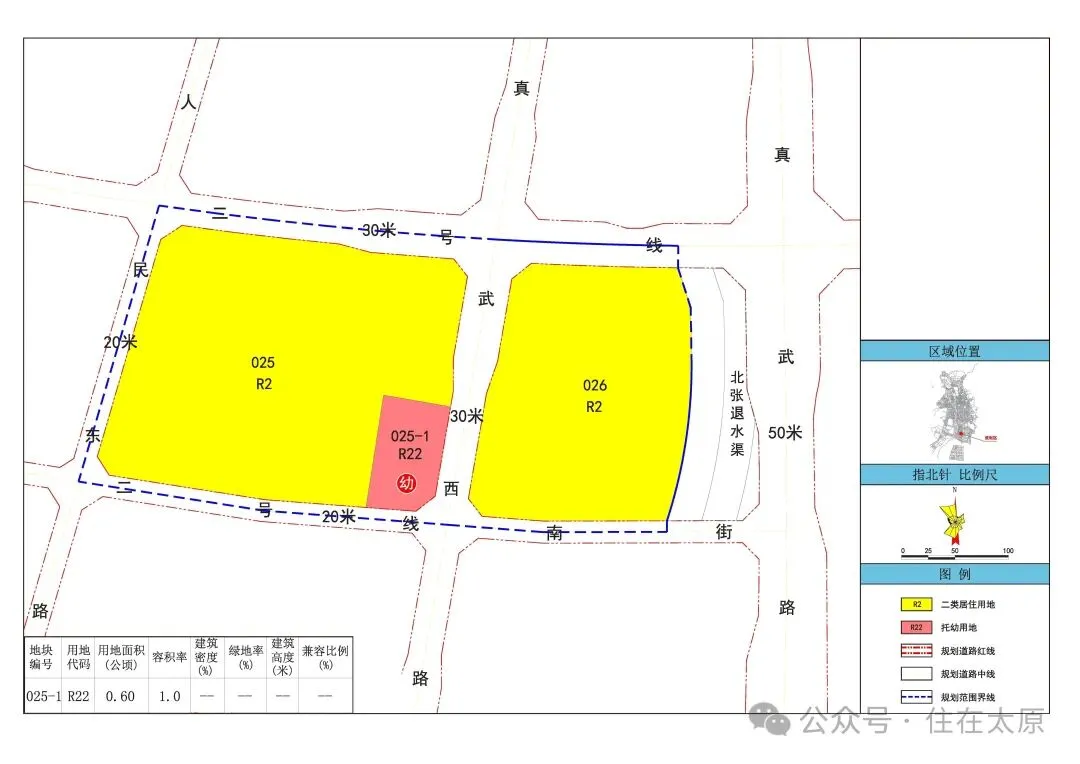
太原市配售型保障性住房锦绣汾东项目配套幼儿园项目总投资3349.75万元,招标内容为施工,建设地点位于太原市小店区,二号线南街以北,真武西路以西。

项目新建1幢地上三层单体建筑、配套建设连廊、门卫室及围墙,总建筑面积为4776.40平方米,其中单体建筑4668.50平方米,连廊47.90平方米、门卫室60.00平方米,围墙330米。建设内容包括土建工程、装饰工程、安装工程、设备购置安装工程及室外工程。


商务广告合作:点击查看联系微信

