都在说新规,好像太原已经遍地都是新规,但是其实太原直到现在才出来第一个新规豪宅项目,就是位于龙城大街的保利龙城璞悦二标段的2栋楼,新出了156㎡和191㎡的三房三卫和四房三卫的新规户型。
今天这篇文章就先来测评一下156㎡的这个新规户型,还是从优点、缺点和适合谁买这三个维度来聊。
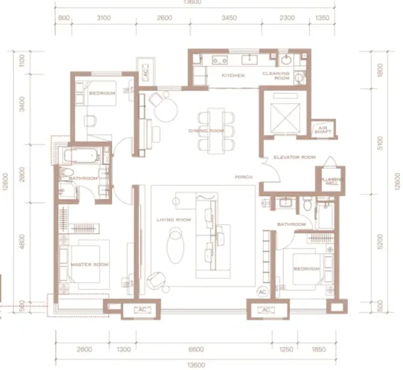
保利龙城璞悦156㎡新规户型
先说优点:
第一,这是太原河东核心地段目前为止出现的首个新规户型,通过封闭阳台半赠送、设备平台全赠送,得房率到了90%以上,套内面积比它一期180平的还大,也就是156㎡做到了旧规180-190㎡的套内面积。
一般来说,新规对旧规那就是碾压式的,我们来对比三类产品:
第一类是像同处核心地段的保利东郡、保利大都汇,150-160㎡还做的南向两开间的边厅户型,产品力差的不是一点点;

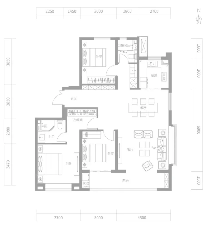
保利大都汇160㎡旧规户型
第二类是像卿云台这种次新小区户型结构已经是比较新的,保利东郡150㎡也有三叶草的,但没有大宽厅的优势,产品力也有差距;
金地卿云台155㎡旧规户型
第三类是像保利天郡这种已经做了三叶草大宽厅的次新二手房冲击力没有那么强。
保利天郡168㎡旧规户型
所以,还是上面说的,新规对于绝大多数的旧规是有碾压性优势的。
第二,再看户型,三房三卫的格局,做到了三套间,作为一个大三房是非常舒适的。
保利龙城璞悦156㎡新规户型
然后具体看,三叶草、落地窗、大宽厅,南向开间尺度做到了13.2米,其中客厅和两个卧室开间的分配也很均衡,客厅开间6米,主卧开间3.8米,次卧开间3.4米。
而且因为赠送,进一步拉长了进深,所以像厨房、卫生间都比原先180㎡的尺度更大、更舒适了。
我把各个功能间的面积都标出来了,除了北向次卧,其他空间尺度都是很舒服的。
第三,有一些很实用的功能间,比如厨房左侧的家政间,是全赠送面积,可以放洗衣机、烘干机包括晾衣架也有,能解决基本的洗衣晾晒问题。
再比如厨房的岛台以及主卫赠送的飘窗,都有它的实际用处。
再说缺点:
第一,从功能性上不如之前180㎡那个可三居可四居的户型,因为龙城璞悦一期180㎡和205㎡的两个户型已经做到市场标杆了,所以一般来说所谓新规都会沿用之前的设计,像191㎡就跟之前205㎡大差不差,但是156㎡这个很明显开间不够,所以只能做成大三居。
当然了,这个只是我个人看法,156㎡做成大三居本身也没什么问题。
第二,就是南向开间的问题,上面说了,156㎡这个户型对于旧规户型是碾压式的打击,但是放到新规户型里面并没有想象中的那么惊艳。
主要还是南向开间不足的问题,这也是它只能做大三居的原因,因为这次156㎡是跟191㎡拼接,191㎡是个南向四开间,所以导致能给到156㎡的开间不足,只有13.2米。
像一期180㎡南向开间做到了14.4米,包括我之前聊过煤气化中铁139㎡的新规户型,说那个是太原目前做得最好的140㎡户型,它的南向开间尺度做到了15米以上。
包括旧规的保利天郡168㎡南向开间做到了13.6米,所以其实不是像销售说的要不要选择做更大的宽厅,是压根没那个条件。
第三,就是一些功能间的问题,首先是玄关,这个户型没有玄关,直接就是开门见厅,咱也不知道,难道现在太原的高端改善已经不需要私密性了吗?
其次是厨房的动线问题,厨房的类型有很多种,为什么说U型厨房是动线最优的?是因为洗切炒很方便,同时还能放下冰箱、
这次156㎡做了一个C字型厨房,去掉岛台其实就是L型厨房,然后把冰箱放在了家政间南边,使用起来稍微有点不便。
以及有一些号称精装收纳亮点的地方我也不是很理解,比如水槽这个地方的收纳就很鸡肋,你说多余吧它确实能放点东西,你说正儿八经放个洗碗抹布,有点生活经验的都知道这些东西是经常需要通风晒干的,放在这个地方难道不容易滋生细菌吗?
以及阳台,这年头,烘干机真的能代替阳台晾晒吗?只能说,在落地窗时代,能在次卧专门做出一个晾晒阳台来的项目真的是很为客户着想了。
当然了,以上提到的都是一些无伤大雅的缺点,龙城璞悦156㎡这个户型目前的确就是太原第一个新规豪宅,也是目前产品力最强的,无论是对比同户型还是同总价优势都很明显,可以说几乎没有竞争对手。
适合谁买:
在太原改善买房,尤其是打算在河东南城买的,但凡预算能到280万左右,对于地段、品质、产品和书包都很看重的,这个属于必看项目。
买房是一个专业的事,专业的事就找专业的人,如果你想在太原买房不知道怎么选的,想获得一些专业、靠谱的建议,买房买的明明白白,可以放心找我,扫下方的二维码就行,有问必答,知无不言言无不尽。