太原小店区这一综合体项目规划设计方案公示!涉及住宅、商业、配套、酒店

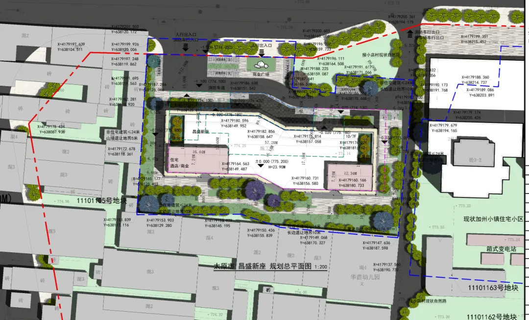
近日,太原市行政审批服务管理局公示了昌盛新座项目建设工程规划设计方案。
一、建设单位名称:山西龙典房地产开发有限公司
二、工程名称:昌盛新座项目
三、工程位置:小店区真武路与昌盛街交叉口西南角,东临加州小镇2#住宅楼,南邻小店村
四、建筑功能:住宅、商业、配套、酒店
五、结构形式:框架、剪力墙结构
六、设计单位:太原王孝雄建筑设计院(有限公司)
公示时间:2026年1月28日至2026年2月5日
提示:公众号平台更改了推送规则,如果不想错过精彩文章,记得读完点个“赞”、点个“在看”,这样每次新文章推送才会第一时间出现在你的订阅列表里!